Wettbewerb / Innovative Grundrisse

Hamburg

Ideenwettbewerb

Die Aufgabe des Verfahrens ist die Ausarbeitung von innovativen Ideen zur Entwicklung von Wohnungsgrundrissen und Wohnkonzepten im Rahmen der Flächenvorgaben der Hamburger Wohnraumförderung

Auslober

Stadt Hamburg

Behörde für Stadtentwicklung und Wohnen

weiterführende Informationen

www.hamburg.de/innovative-grundrisse

Innovationsdruck entsteht durch gesellschaftliche Veränderungen und Herausforderungen, wie

• demografischen Wandel
• Ressourcenverknappung
• fortschreitendes Öffnen der Schere zwischen Arm/Reich
• steigende Bau- und Finanzierungskosten
• Wandel individueller Lebensmodelle
• Digitalisierung
• Veränderung der Abgrenzung von Wohnen und Arbeiten

Im Anbetracht der Geschwindigkeit in der sich die Gesellschaft weiterentwickelt und auf zum Teil unvorhergesehene Ereignisse (wie Krieg, Vertreibung und Pandemie) reagieren muss, ist unserer Auffassung nach die architektonische Konsequenz für einen Stadtbaustein, der auf eine Standzeit an diesem Ort von mindestens 50 Jahren gedacht wird, die Maximierung der Nutzungsflexibilität.

Sie soll auf mehreren Ebenen erreicht werden:

> Kurzfristig ermöglichen wir die „ad hoc Flexibilität“ durch das Bereitstellen eines vielseitigen Mix an Wohnungsgrößen und Wohnformen mit hoher Lebensqualität. Flächeneffiziente Wohnungsgrundrisse ermöglichen das zusätzliche Angebot eines großen Anteils an Kollektivflächen im Haus. Neben klassischen Gemeinschaftsräumen als Treffpunkte und Veranstaltungsorte, besteht die Möglichkeit, über das reine Grundbedürfnis Wohnen hinaus „Plusräume“ zur Erweiterung des individuellen Wohnraums zur Verfügung zu stellen. Diese können stunden- oder tageweise Aktivitäten und Services ermöglichen, die innerhalb der eigenen Wohnungen nicht möglich wären auch nicht dauerhaft dort vorgehalten werden können.

> Mittelfristig soll es den Bewohnern möglich gemacht werden, auf temporäre Veränderungen ihrer Lebensumstände zu reagieren und das individuelle Wohnen ihren Bedürfnissen anzupassen, z.B. in Form von wochen- oder monatsweise zuschaltbarem Wohnraum für Gäste oder Homeoffice-Plätze. Hierfür können die „Plusräume“ zwar außerhalb der Wohnungen, aber in räumlicher Nähe situativ notwendige Ergänzungen bieten. Im Bereich der Clusterwohnungen bieten zusätzlich Schalträume die Option zwischen zwei privaten Einheiten getauscht zu werden.

> Langfristig werden sich auch weiterhin die Wohnanforderungen der Gesellschaft weiterentwickeln. Um auch hier auf das Unvorhersehbare reagieren zu können, sollen bauliche Veränderungen vergleichsweise einfach, günstig und ressourcensparend möglich sein. So könnte z.B. die Erfahrung zeigen, dass die gemeinschaftlichen Plusräume besser den Clusterwohnungen zugeschlagen werden, oder ein anderer Wohnungsmix notwendig wird. Die lösbar montierten, vom Tragwerk unabhängigen Wand-, Decken- und Fassadenelemente lassen sich demontieren und in neuer Aufteilung wiederverwenden.

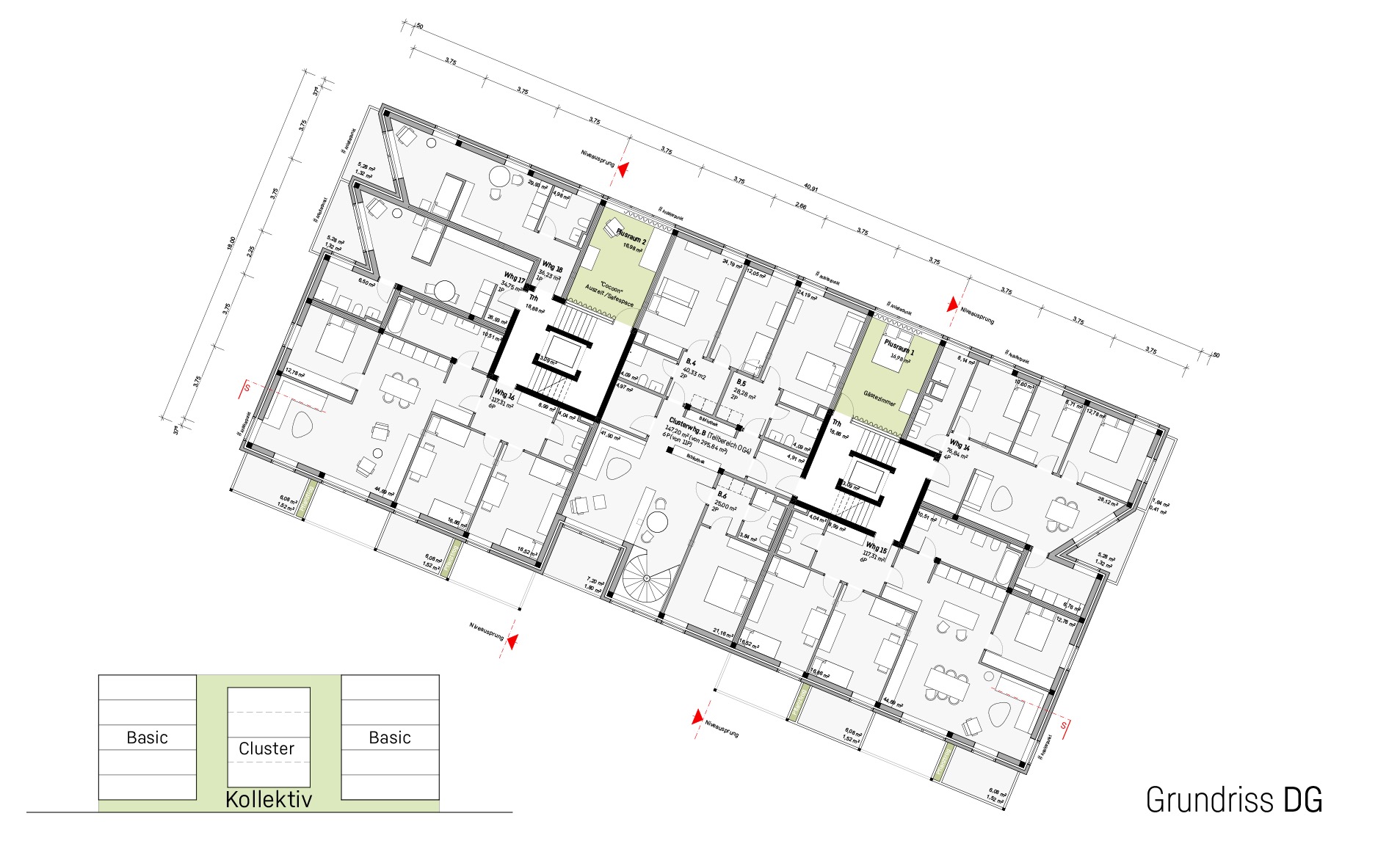
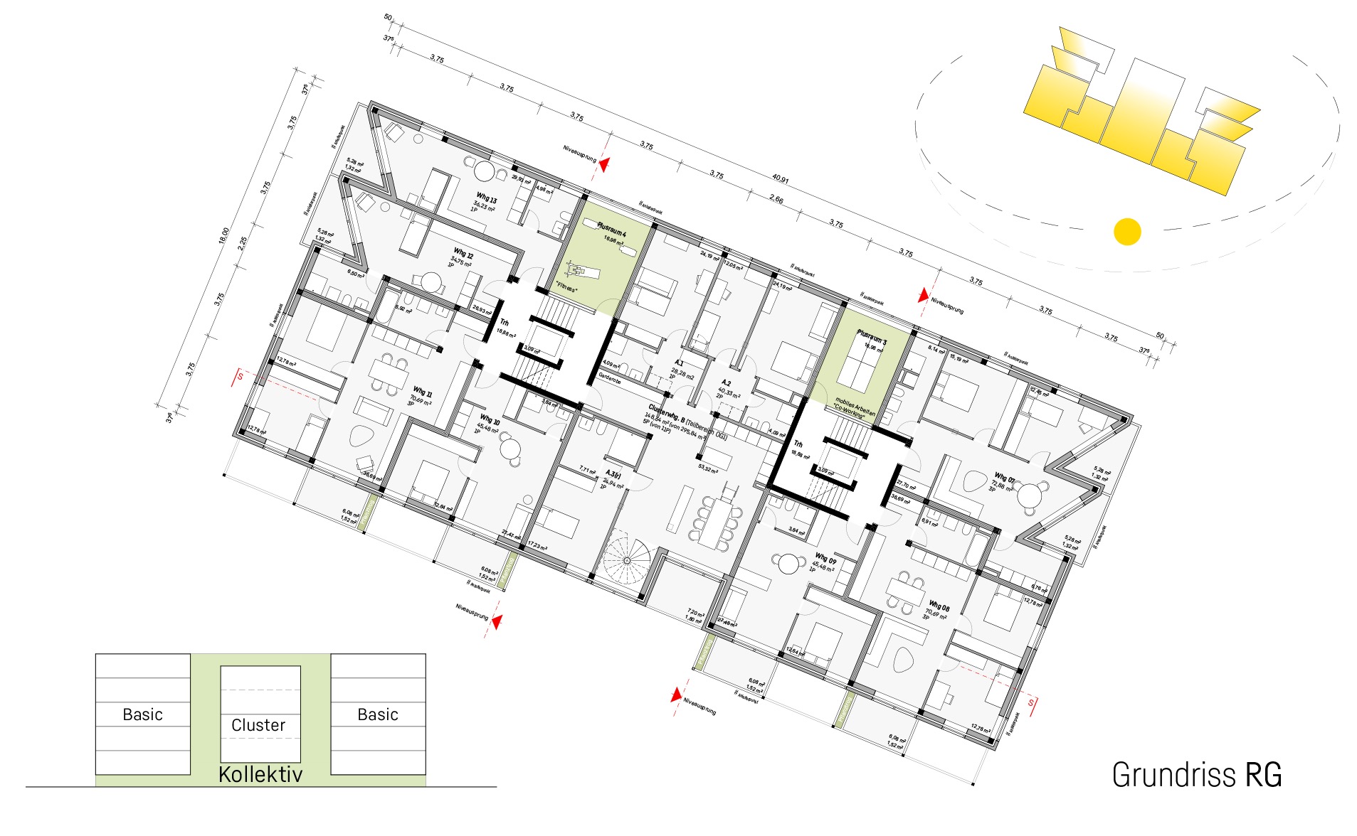
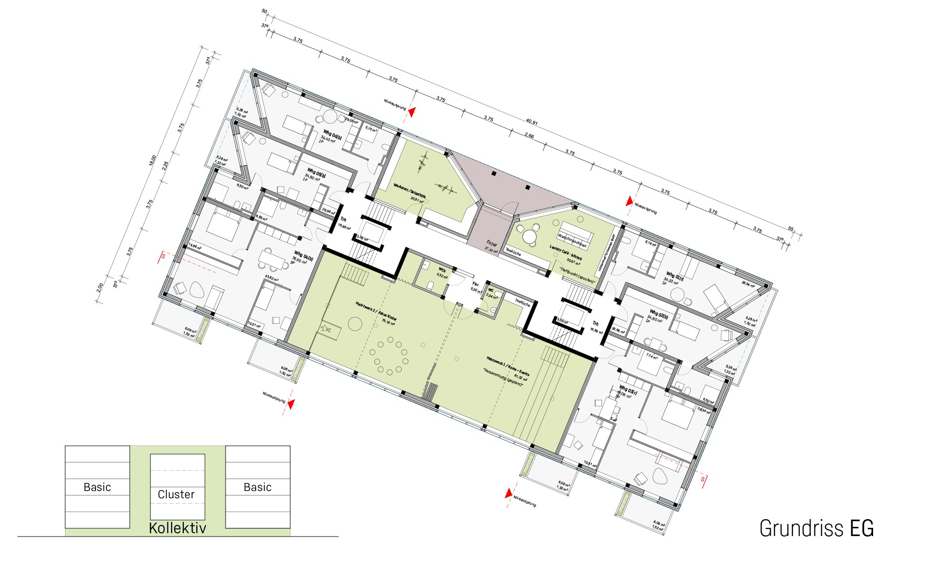
Gebäudeorganisation

Das Haus ist in drei Wohnbereiche für Basic- und Clusterwohnen unterteilt, die von einer das ganze Haus durchziehenden „Gemeinschaftsklammer“ aus Erschliessung, angelagerten Gemeinschaftsflächen und Plusräumen verbunden wird.
Die zwei in der Gebäudemitte angeordneten Treppenhäuser unterteilen das Haus in drei Zonen, einen kollektiven Kern in der Mitte sowie zwei individuellere Wohnbereiche außen.
Im Kern liegt der gemeinschaftliche Bereich des Gebäudes. Hier befinden sich im EG der Hauseingangs- und Foyerbereich und in den oberen Geschossen die jeweils doppelstöckigen Clusterwohnungen sowie Gemeinschaftsräume auf allen Ebenen. Das Konzept zieht sich bis auf die Dachebene, wo eine von den seitlichen höheren Gebäudeteilen geschützte Dachterrasse genutzt werden kann.
Über die beiden Treppenhäuser gelangt man beidseitig in die um ein halbes Geschoss höher liegenden individuellen Basic-Wohnbereiche mit Wohnungen für ein bis sechs Personen. Durch die Anhebung über das Straßenniveau erhalten auch die Wohnungen und Balkone der untersten Ebene die nötige Privatheit im dichten stätdischen Kontext der Beispielbebauung am Grassbrook.